
Πληκτρολογήστε τον τύπο κλουβί WP-OPG
Ο τύπος WP-OPG Cage Picking Cage είναι ειδικά διαμορφωμένος για να ταιριάζει σε μεμονωμένα περονοφόρα ανυψωτικά οχήματα και εφαρμογές. Τα σχέδια ποικίλλουν από ένα τυποποιημένο κλουβί για να συμπεριλαμβάνουν δίσκο δεμάτων, προστατευτικά καλύμματα κεφαλής, τροχούς, πύλες ταλάντευσης και συρόμενες.
*** Κατασκευασμένο αυστηρά σύμφωνα με το αυστραλιανό πρότυπο AS 2359.1, ο τύπου WP-OP Cage Picking Cage πρέπει να ανασηκωθεί μόνο από ένα αποκλειστικό 'Forklift Picking Order'. Η χωρητικότητα φορτίου του ανυψωτικού οχήματος περιορίζει την πραγματική χωρητικότητα φορτίου του κλωβού παραγγελίας παραγγελιών.
ΠΡΟΔΙΑΓΡΑΦΕΣ (για τυποποιημένο κλουβί):
• Ασφαλές φόρτο εργασίας (SWL) 1000kg
• Κέντρο φόρτωσης 600mm
• Βάρος μονάδας 168kg
• Μέγεθος τσέπης 140 x 65mm
• Κέντρα τσέπης 560mm
• Οριζόντια C από G 600mm
• Κάθετη C από G 210mm

Γρήγορες λεπτομέρειες
Τόπος προέλευσης: Fujian, Κίνα (ηπειρωτική χώρα)
Εμπορικό σήμα: HUAMAI
Αριθμός μοντέλου: WP-OPG
Όνομα προϊόντος: Ο τύπος WP-OPG Παραγγελία Cage Cage
Τύπος: WP-OPG
Ασφαλές φόρτο εργασίας (SWL): 1000kg
Βάρος μονάδας: 150 κιλά
Κέντρο φόρτωσης: 600mm
Μέγεθος τσέπης: 140 x 65 χιλιοστά
Κέντρα Pocket: 560mm
Οριζόντια C από G: 600mm
Κάθετη Γ από G: 210mm
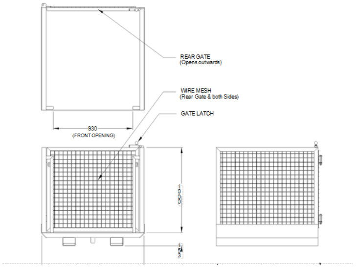
Κατασκευασμένο σύμφωνα με τα αυστηρά σύμφωνα με τα AS 2359.1 και AS 2359.6, το FC2906 Cage Platform Picking Platform Cage
πρέπει να χρησιμοποιείται μόνο από εγκεκριμένο περονοφόρο όχημα παραγγελίας.
Το FC2906 είναι εξοπλισμένο με άνοιγμα πλήρους πλάτους προς τα έξω
gate, επιτρέποντας την πρόσβαση στο απόθεμα όπου απαιτείται.
Ασφαλής φόρτωση εργασίας 1000kg
Κέντρο φορτίου 600mm
Βάρος μονάδας 180kg
Πόρτα χειρολαβής Ύψος 1000mm
Μέγεθος τσέπης με φρένο 140 x 65 χιλιοστά
Κέντρα τσέπης πεντάλ 560mm
Σμάλτο χρώμα βαφής










